Overview
- Updated On:
- 21/03/2026
Description
Introduction: Affordable & High-Return Land Investment in Ahmedabad
Looking for an affordable land investment near Ahmedabad with strong returns and future growth potential? The combined opportunity offered by Winged World and Vanthal Plots in Ahmedabad presents a compelling real estate investment package starting from just ₹16 Lakhs with assured 14% annual ROI and a secure buyback after 3 years.
Both locations — Winged World and Vanthal — are emerging as promising land investment destinations due to their proximity to Ahmedabad city, fast-developing infrastructure, and strong future appreciation potential. Whether you are a first-time investor or a seasoned real estate investor, these plots offer the perfect balance of affordability, predictable returns, and future growth.
Why Invest in Winged World & Vanthal Plots in Ahmedabad?
Modern investors focus on ROI (Return on Investment) and asset growth, and these land investment options combine both effectively.
Here’s why:
- Low investment threshold starting from ₹16 Lakhs
- Attractive 14% annual ROI, which is significantly higher than typical residential yields
- Buyback offer after 3 years, giving investors an exit strategy with peace of mind
- High demand for land and plots around Ahmedabad
- Strong growth potential due to infrastructure development and urban expansion
Such features make both Winged World and Vanthal plots excellent choices for wealth creation and passive income generation in real estate.
Location Advantage: Near Ahmedabad
Winged World
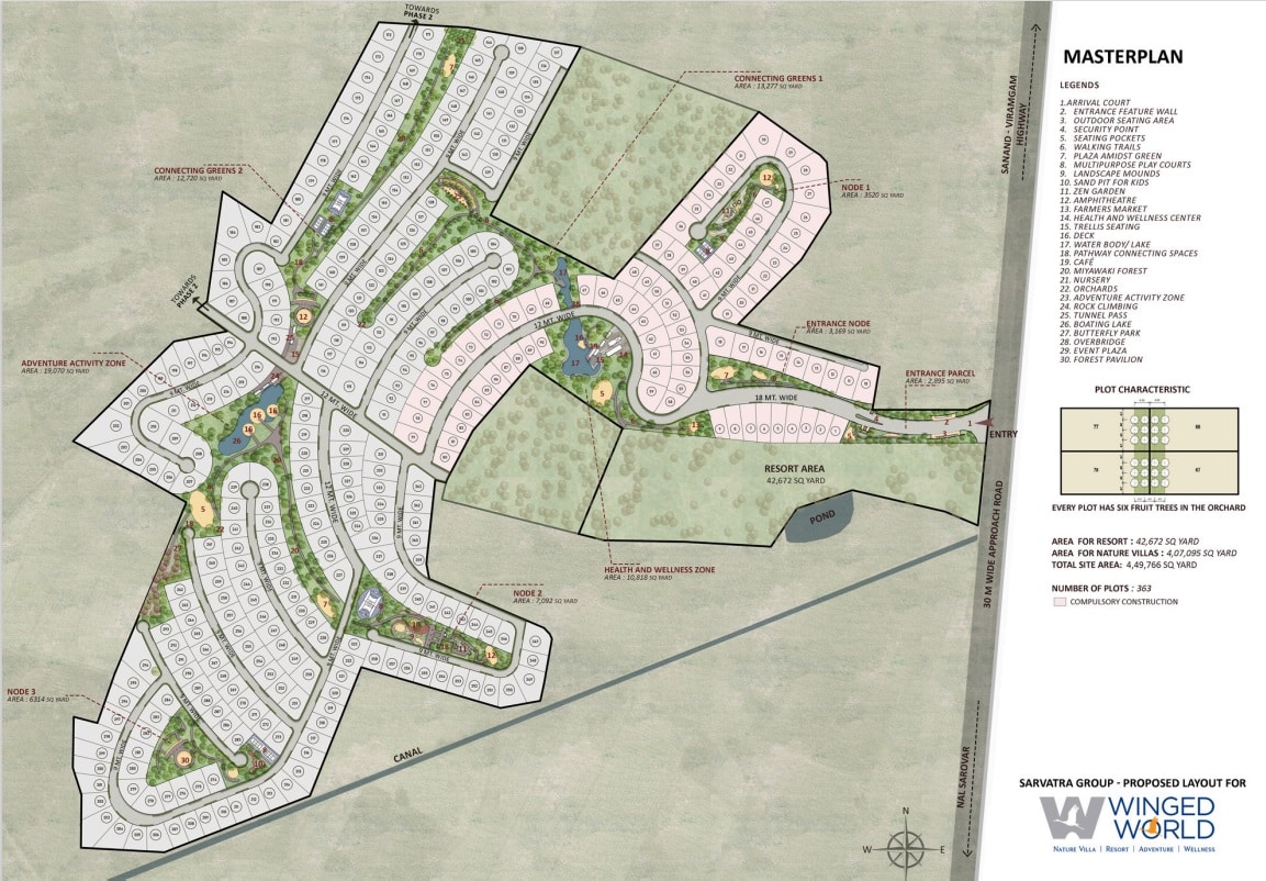
Winged World is an emerging land investment destination developed by Sarvatra Group, strategically situated to benefit from easy access to Ahmedabad and surrounding urban centers.
This location is well positioned for:
- Proximity to national highways
- Access to neighbourhood amenities
- Rapid infrastructure improvements
Vanthal, Ahmedabad
Vanthal is another emerging suburb around Ahmedabad gaining attention from investors and families alike. It is especially popular among buyers seeking affordable residential plots and land bank investments near the city.
Benefits include:
- Connectivity to Ahmedabad city
- Growing residential community
- Potential for future appreciation as development progresses
Together, these land parcels form a compelling proposition for investors who value growth potential and long-term returns.
Investment Highlights – Quick Overview
| Feature | Detail |
|---|---|
| Project/Area | Winged World, Vanthal Plots |
| Property Type | Land / Residential Plots |
| Location | Ahmedabad, Gujarat |
| Starting Investment | ₹16 Lakhs (Approx.) |
| Annual ROI | Assured 14% |
| Buyback | Guaranteed buyback after 3 years |
| Ideal For | Investors & Land Buyers |
| Growth Potential | High due to infrastructure expansion |
| Buyer Segment | First-time investors, NRIs, land portfolio investors |
(This table helps visitors quickly understand the key value propositions.)
Assured 14% Annual ROI — Predictable Investment Returns
One of the strongest reasons to consider these plots as an investment is the assured 14% annual return — a rate that stands above most typical residential and traditional investment yields.
High rental yields and strong capital growth are often tough to find in residential properties, whereas land investments near growing urban areas like Ahmedabad offer both.
With reliable 14% ROI, investors can confidently plan short-term and long-term financial goals, including active farming of capital or reinvestment in other real estate assets.
Secure Buyback After 3 Years
A key benefit that elevates the appeal of these plots is the buyback guarantee after 3 years. This feature:
- Provides a secure exit strategy
- Reduces investment risk
- Offers reassurance to new investors
- Makes the investment more predictable
Buyback options are a smart choice for investors seeking both profitability and risk management.
Land Plots vs Other Property Types
Compared to residential apartments or commercial spaces, land plots — especially in emerging zones around major cities — offer:
- Low maintenance overhead
- No rental management hassles
- Higher flexibility in future development
- Opportunity for multiple uses (residential, rental farm house, future resale, etc.)
Investors who understand the real estate market know that strategic land purchase near growing cities often outperforms other property types over longer time horizons.
Capital Appreciation Potential
Ahmedabad’s real estate market has shown consistent growth over time. As infrastructure improves and population rises, demand for land plots has increased, especially in suburban zones like Vanthal and similarly positioned investment areas like Winged World.
Potential benefits include:
- Strong upward price trajectory in the future
- Increased buyer demand as the city expands
- Growing commercial and residential development nearby
These factors combined make land plots not just an income option, but also a long-term capital appreciation play.
Who Should Consider Investing?
This property opportunity is ideal for:
- First-time real estate investors
- NRIs seeking long-term investments in Indian property
- Professionals aiming for passive income with buyback security
- Investors looking to diversify land holdings in real estate
- Buyers targeting high ROI with exit strategy
The combination of low entry cost, high ROI, and buyback option makes this a desirable package for a wide range of investor types.
Conclusion: Smart Investment with Predictable Returns
Winged World and Vanthal plots near Ahmedabad represent a balanced investment opportunity that combines:
- Affordable pricing
- Assured 14% ROI per year
- Secure buyback after 3 years
- Strong location advantage
- Capital appreciation potential
Whether you are planning short-term gains or long-term growth, this investment package aligns with both strategies, making it a smart choice in Gujarat’s real estate segment.







